Nếu anh chị lựa chọn công ty tôi làm đối tác thiết kế nhà cho anh chị khách hàng thì anh chị khách hàng có thể liên hệ qua số điện thoại : O9O2. 48 .38. 35
Thiết kế nhà đẹp 2 tầng với sự hài hòa bậc nhất
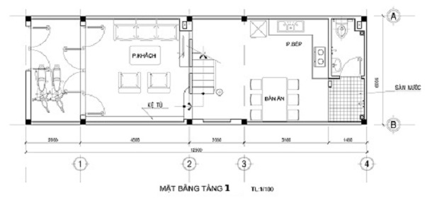
Tầng trệt 1 sân vườn kết hợp để xe, 1 phòng khách vừa là khu sinh hoạt chung, có kệ tủ để trung bày quà lưu niệm, bếp ăn wc
Tầng 1: Bố trí sân vườn kết hợp làm khu vực để xe, phòng khách vừa là khu sinh hoạt chung, kệ tủ để trưng bày quà lưu niệm, bếp ăn, toilet.
Tầng 2 là phòng ngủ chính và một phòng ngủ cho bé trai và không gian giặt phơi quần áo.
Tầng mái đặt bồn nước kết hợp trồng rau sạch vừa để dùng cho cả nhà, vừa để có không gian xanh.
Công ty chúng tôi là một trong những công ty đầu ngành trong ngành nghề xây dựng nếu anh chị cần tư vấn thiết kế các mẫu nhà hiện đại phù hợp với lô đất của mình vui lòng liên hệ hotline công ty để chúng tôi cử nhân viên đến làm việc trực tiếp với anh chị
Nguồn www.lidota.com



0 nhận xét:
Đăng nhận xét